شرکت حبتور

پروژه
برگر فکتوری ایرانمال

پروژه برگرفکتوری ایران مال سومین شعبه از مجموعه شعبات برگرفکتوری در ایران است. پس از شعبات پالادیوم و بام لند، برگرفکتوری یکی از شناخته شده ترین برگرشاپ های ایران است که همواره با استایل خاص و منحصر به فرد خود زبانزد بوده است.

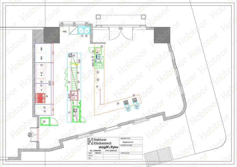
در این پروژه، همانند شعبات پیشین سعی شد هویت طراحی برند حفظ شود. آشپزخانه و فضاهای داخلی با استفاده از استیل و خطوط صنعتی طراحی شده اند تا هم خوانی با زبان طراحی اصلی برگرفکتوری داشته باشند. با این حال، طراحی شعبه ایران مال با توجه به هندسه و ویژگی های خاص مجموعه کمی متفاوت و بومی سازی شده است تا همسو با فضای جدید باشد.

طراحی آشپزخانه صنعتی و تجهیز کامل این شعبه برعهده تیم ما بوده است. کارفرمای این پروژه آقای الله وری بوده اند که از موفق ترین و شناخته شده ترین گروه های فعال در حوزه غذایی ایران گروه SPU محسوب می شوند. همکاری با چنین گروه برجسته ای فرصت ارزشمندی برای خلق تجربه ای منحصر به فرد بوده است.

مشـــاوره، طـــراحی و تجهیز کامل کافه رستوران با حبتور

صفر تا صد راه اندازی کافه، رستوران خود را به ما بسپارید؛ شرکت حبتور از طراحی آشپزخانه تا تأمین و نصب تجهیزات در کنار شماست. برای دریافت مشاوره رایگان و شروع موفقیت‌آمیز، همین حالا با ما تماس بگیرید.

Gallery

پلن طراحی برگر فکتوری ایرانمال

Consultation

رزرو وقت مشاوره رایگان